Das Schornsteinelement besteht aus hochwertigem Edelstahl. Dieser ist korrosions- und säurebeständig. Der Stahl stammt aus deutscher und finnischer Produktion. Die durchgehende Dämmstoffschicht aller Rohrelemente verhindert schädliche Wärmebrücken und gewährleistet die thermische Ausdehnung des Innenrohres. Die Steckverbindungen werden mit einem Klemmband gesichert und garantieren somit höchste Stabilität.
Die Längsnähte an den Rohren sind plasma-geschweißt. Alle Formteile sind voll verschweißt.
Eigenschaften des MKD-Systems
– zugelassen für alle genormten Feuerstätten, Gas, Öl, Holz, Kohle, Holzpellets
– zugelassen bis 600 °C Abgastemperatur
– entspricht DIN EN 1856-1
– rußbrandbeständig
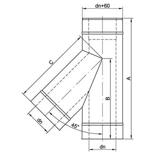
– handmontierte, durchgängige Mineralfaserdämmung, Dicke ca. 30 mm
– erhältlich auch mit Dichtung für Überdruckbetrieb bis 200°C (druckdichte Ausführung)
– hochwertiges V4A-Edelstahlmaterial
– 70 mm lange Einsteckmuffen und Klemmband für höchste Stabilität
– glatte Oberfläche minimiert Ablagerung von Verbrennungsrückständen
– Materialstärke der Rohrelemente innen und außen 0,6 mm (Bögen und T-Stücke außen 0,8 mm)
– hergestellt auf hochmoderner Fertigungsanlage












Rezensionen
Es gibt noch keine Rezensionen.