Das Schornsteinelement besteht aus hochwertigem Edelstahl. Dieser ist korrosions- und säurebeständig. Der Stahl stammt aus deutscher und finnischer Produktion.
Ihr Vorteil:
– einfache Montage: Es müssen keine Veränderungen am vorhandenen Schornstein vorgenommen werden
– universell einsetzbar: Es können alle einwandigen Aufsätze (MKS) aus unserem Programm montiert werden
– sichere Verbindung der Edelstahlelemente durch die Verwendung eines Klemmbandes
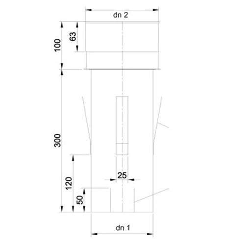
– durch 300 mm Einstecktiefe und vier Spannfedern absolut sicherer Halt an der Mündung
– sehr stabile Ausführung
Eigenschaften
– zugelassen für alle genormten Feuerstätten, Gas, Öl, Holz, Kohle, Holzpellets
– zugelassen bis 450 °C Abgastemperatur
– entspricht DIN EN 1856-2
– rußbrandbeständig
– hochwertiges V4A-Edelstahlmaterial
– 300 mm langer Einschub rund für sicheren Halt
– glatte Oberfläche minimiert Ablagerung von Verbrennungsrückständen
– Materialstärke 0,6 mm
– hergestellt auf hochmoderner Fertigungsanlage












Rezensionen
Es gibt noch keine Rezensionen.